小会議室 Wave(半スパン)A|シーガイア・フォレスト・コテージ1F
施設概要
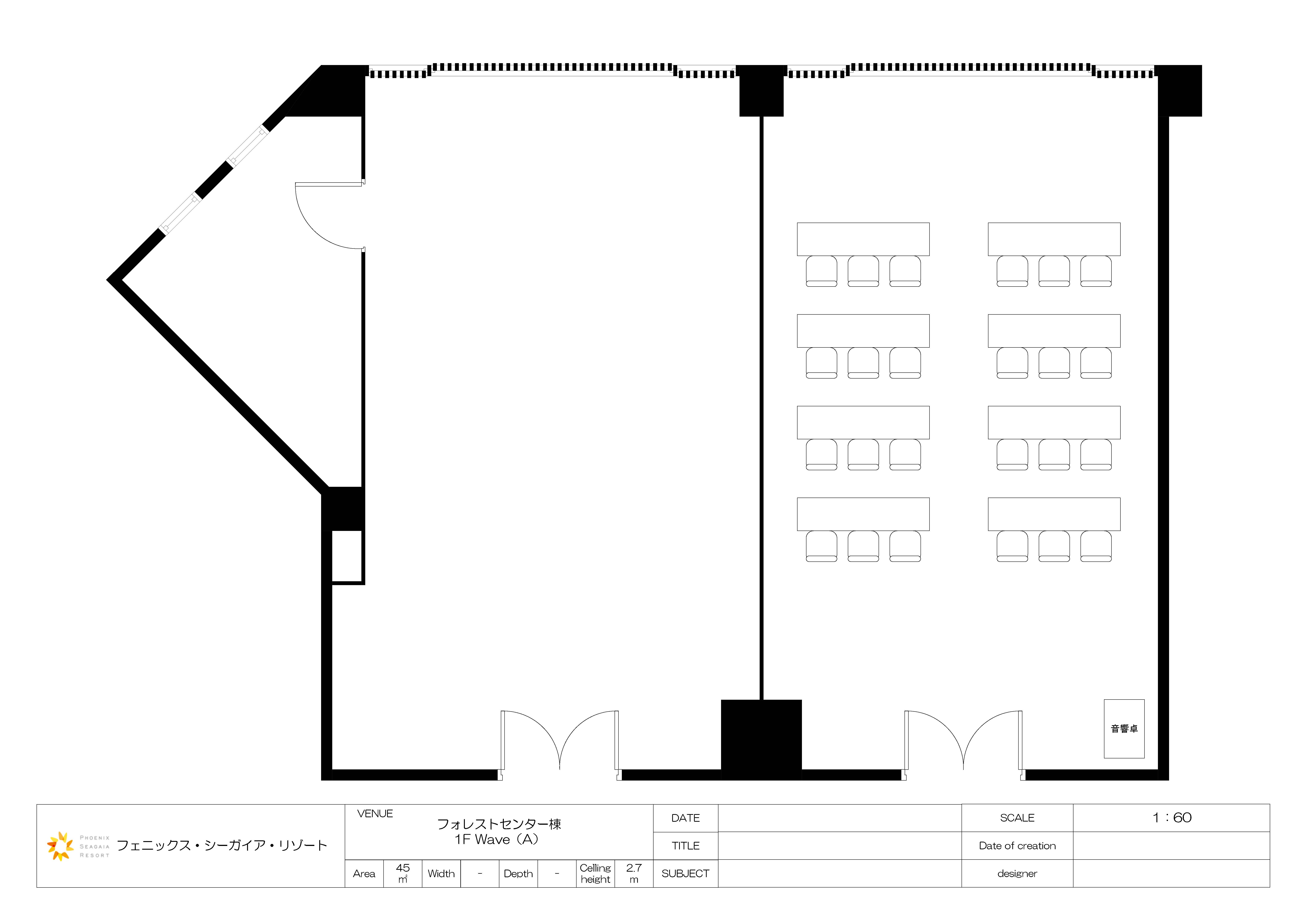
「Wave A」は、シーガイア・フォレスト・コテージ センター棟1階の中会議室「Wave」を半分に分割した際の小会議室です。
広さ45㎡のコンパクトな空間は、スポーツ合宿や学生合宿のグループミーティングや少人数での打ち合わせに適しています。
収容人数は、ディナー形式(20名)、シアター形式(40名)、スクール形式(24名)と、用途に応じたレイアウトが可能です。
「Wave」は1/2に分割して使用することができ、目的や参加人数に応じた最適な会場構成が可能です。
Wave 1/2分割 Wave Bについてはこちら
Wave分割なしの中会議室についてはこちら
入口には両開きドア(開口時130cm)を採用し、移動もスムーズ。バリアフリー設計で快適な環境を提供し、会議やセミナーの進行をサポートします。
基本情報
| 場所(エリア) | シーガイア・フォレスト・コテージ |
|---|---|
| 場所(階数) | 1F |
| 面積 | 45㎡ |
| ディナー形式 | 20名 |
| 立食ビュッフェ形式 | – |
| 着席ビュッフェ形式 | – |
| シアター形式 | 40名 |
| スクール形式 | 24名 |
| その他の形式 | – |
| 備考 | ※テーブルレイアウトによりご利用人数が変わりますので、詳細につきましては担当係員にお問い合わせください。 |
| 実績 | スポーツ合宿・学生合宿 |
| 特徴 | 分割可能な多目的会場 |
| 飲食 | 可 |
バリアフリー情報
| 入り口ドアタイプ | 両開きドア |
|---|---|
| 入り口ドア開口時の幅 | 130cm |
| 入口ドア段差 | 無し |
ご相談内容に応じて、適切なテーブルレイアウトのご提案が可能です
イベントの形式・収容人数・ご予算などに合わせてスタッフが適切なテーブルレイアウトや設備のご提案をさせていただきます。
