料亭 四季乃 風光|シーガイアコンベンションセンター3F
施設概要
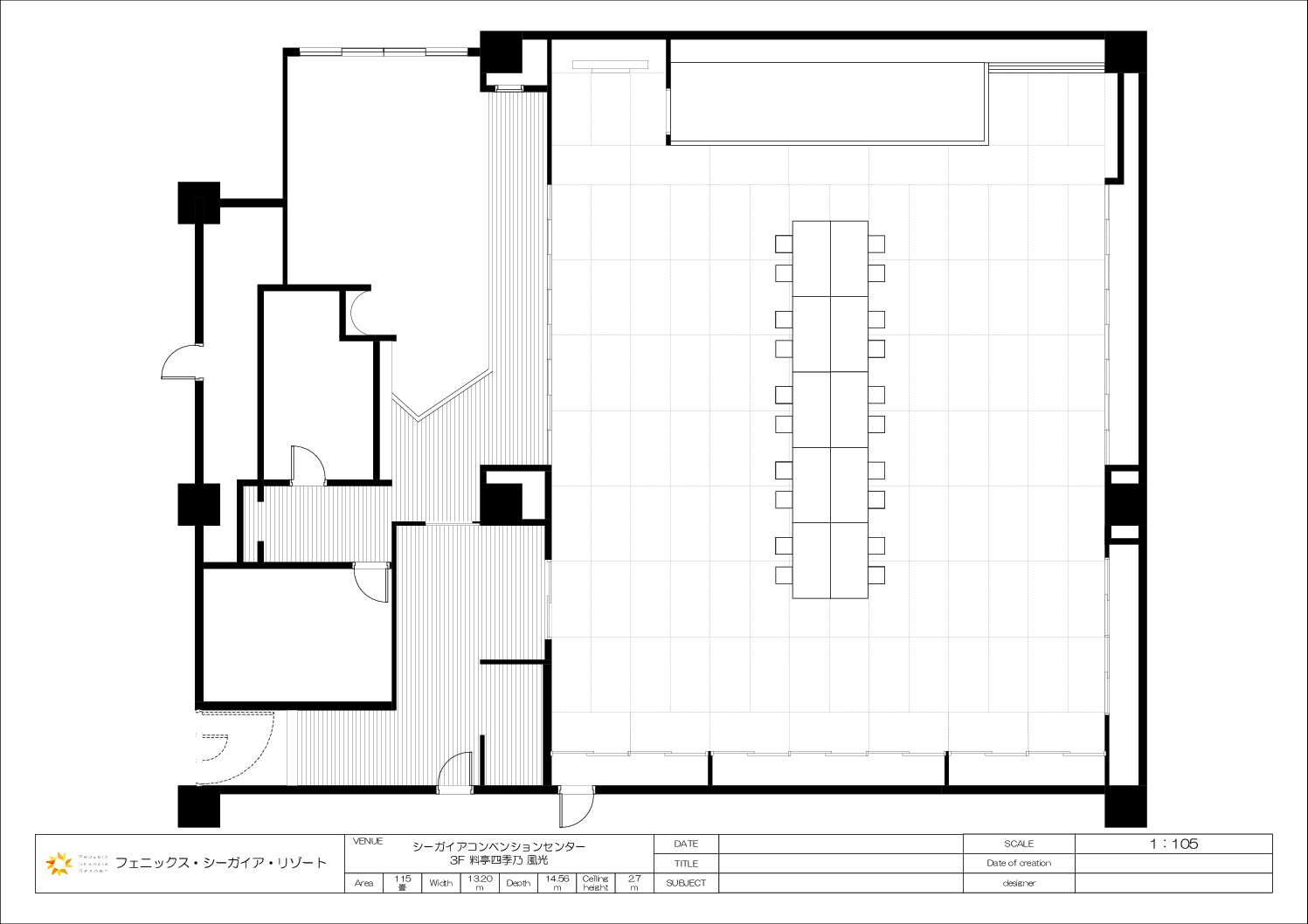
「風光」は、シーガイアコンベンションセンター3階に位置する料亭「四季乃」の中でも特に広々としたお部屋です。
115畳(192㎡)の広さを誇り、椅子とテーブル形式で最大45名まで対応可能です。
※お座敷の中で唯一、マイク・カラオケのご利用が可能です
このお部屋は、格調高い床の間や式台、書院など、伝統的な数寄屋造りの様式美が随所に施されており、格式高い空間を演出します。
歴史や文化を感じさせる洗練された雰囲気は、特別な会食や大切な場面にもふさわしい佇まいです。
「風光」は2023年の農相会合における大臣主催夕食会にも使用された実績があり、重要な場面で信頼される会場です。
大人数の会食や公式なイベントなど、品格が求められるシーンに最適です。
入口は両引き込み戸(開口時100cm)で段差がありますので、ご利用の際にはご注意ください。
基本情報
| 場所(エリア) | シーガイアコンベンションセンター |
|---|---|
| 場所(階数) | 3F |
| 面積 | 115畳(192㎡) |
| ディナー形式 | 45名 |
| 立食ビュッフェ形式 | – |
| 着席ビュッフェ形式 | – |
| シアター形式 | – |
| スクール形式 | – |
| その他の形式 | – |
| 備考 | 椅子テーブル形式 |
| 実績 | 2023年農相会合 大臣主催夕食会 |
| 特徴 | マイク・カラオケなどの音響機器使用が可能 |
| 飲食 | 可 |
バリアフリー情報
| 入り口ドアタイプ | 両引き込み戸 |
|---|---|
| 入り口ドア開口時の幅 | 100cm |
| 入口ドア段差 | 有り |
ご相談内容に応じて、適切なテーブルレイアウトのご提案が可能です
イベントの形式・収容人数・ご予算などに合わせてスタッフが適切なテーブルレイアウトや設備のご提案をさせていただきます。

すべてのレイアウトプランを見る
設備紹介
設備・サービスが充実しています
バリアフリー対応で、すべてのお客様に快適な環境をお届けします。設備も充実しており、Wi-Fiや音響設備、プロジェクターなど、多様なニーズに対応しています。
※設備の有無はエリアごとに異なりますので、ご利用の際は事前にご確認ください。
無料でご利用いただける施設・設備サービス
-
バリアフリートイレ
有料でご利用いただける設備サービス
-
有料WiFi 各施設内
-
音響設備
コンベンションセンター内充電器

有料の急速充電器を設置しております。
硬貨のみの対応でございます。
コピー機・PC

ビジネスラウンジにコピー機・PCを設置しております。詳しくはお問い合わせください。
コンベンションセンター入口総合案内

総合案内はデジタルサイネージで、館内のご案内と、当日のスケジュールを表示しております。
コンベンションセンターロビー

国際会議・学会・企業イベント・展示会などMICE開催時の受付・待合・ネットワーキングの場としてご利用可能です。広々とした空間は、来場者同士の交流やビジネスイベントの円滑な進行をサポートします。
カーリフト

最大6,000キロまで搭載可能なカーリフトをご用意しております。各フロアまで大型機材(展示用車含む)などの搬入が可能です。
駐車場

| 台数 | 平面駐車場 Aブロック~Fブロック 2000台 EブロックにEV充電器6基設置 |
|---|
平面駐車場から、ホテルロビーまでは、徒歩約3~5分程度を要します。
