料亭 四季乃 初空|シーガイアコンベンションセンター3F
施設概要
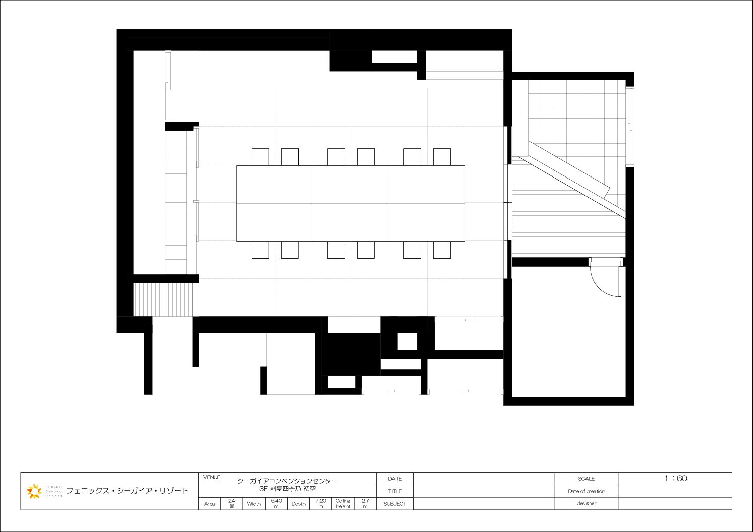
「初空」は、シーガイアコンベンションセンター3階に位置する料亭「四季乃」の一室です。
広さ24畳(38.8㎡)で、椅子とテーブル形式で最大12名まで対応可能な完全個室です。
このお部屋は滝のせせらぎが聞こえる静かな環境が魅力で、自然の音が心地よい和の空間を演出します。
伝統的な数寄屋造りの趣きを感じる設えは、格式ある場面にもふさわしい落ち着きある雰囲気を提供します。
「初空」は顔合わせ会や慶事・弔事の食事会など、大切な場面でのご利用に最適です。
静かな空間で心を込めたお料理とともに、思い出に残る時間をお過ごしください。
入口は片引き戸(開口時87cm)で段差がありますので、ご利用の際にはご注意ください。
基本情報
| 場所(エリア) | シーガイアコンベンションセンター |
|---|---|
| 場所(階数) | 3F |
| 面積 | 24畳(38.8㎡) |
| ディナー形式 | 20名 |
| 立食ビュッフェ形式 | – |
| 着席ビュッフェ形式 | – |
| シアター形式 | – |
| スクール形式 | – |
| その他の形式 | – |
| 備考 | 椅子テーブル形式 |
| 実績 | 顔合わせ会・慶事/弔事食事会 |
| 特徴 | 滝のせせらぎが聞こえる完全個室 |
| 飲食 | 可 |
バリアフリー情報
| 入り口ドアタイプ | 片引き戸 |
|---|---|
| 入り口ドア開口時の幅 | 87cm |
| 入口ドア段差 | 有り |
ご相談内容に応じて、適切なテーブルレイアウトのご提案が可能です
イベントの形式・収容人数・ご予算などに合わせてスタッフが適切なテーブルレイアウトや設備のご提案をさせていただきます。

すべてのレイアウトプランを見る
設備紹介
設備・サービスが充実しています
バリアフリー対応で、すべてのお客様に快適な環境をお届けします。設備も充実しており、Wi-Fiや音響設備、プロジェクターなど、多様なニーズに対応しています。
※設備の有無はエリアごとに異なりますので、ご利用の際は事前にご確認ください。
無料でご利用いただける施設・設備サービス
-
バリアフリートイレ
有料でご利用いただける設備サービス
-
有料WiFi 各施設内
コンベンションセンター内充電器

有料の急速充電器を設置しております。
硬貨のみの対応でございます。
コピー機・PC

ビジネスラウンジにコピー機・PCを設置しております。詳しくはお問い合わせください。
コンベンションセンター入口総合案内

総合案内はデジタルサイネージで、館内のご案内と、当日のスケジュールを表示しております。
コンベンションセンターロビー

国際会議・学会・企業イベント・展示会などMICE開催時の受付・待合・ネットワーキングの場としてご利用可能です。広々とした空間は、来場者同士の交流やビジネスイベントの円滑な進行をサポートします。
カーリフト

最大6,000キロまで搭載可能なカーリフトをご用意しております。各フロアまで大型機材(展示用車含む)などの搬入が可能です。
駐車場

| 台数 | 平面駐車場 Aブロック~Fブロック 2000台 EブロックにEV充電器6基設置 |
|---|
平面駐車場から、ホテルロビーまでは、徒歩約3~5分程度を要します。
