メインロビー|シーガイアコンベンションセンター2F
施設概要
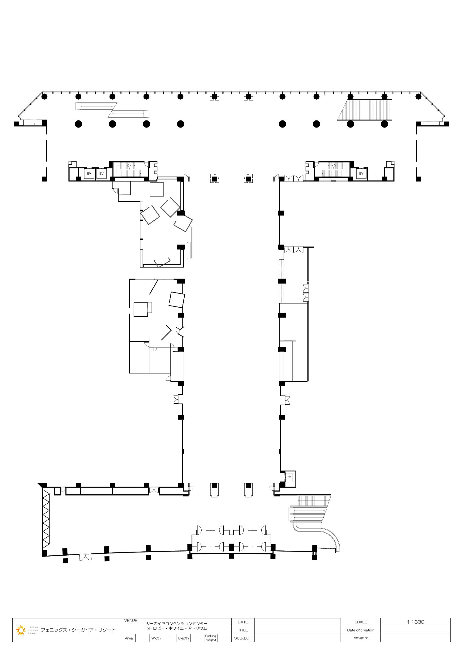
シーガイアコンベンションセンター2階に位置するこのメインロビーは、横20m、長さ70mと広さ1414㎡という広さを誇ります。
柱がなく開放感あふれるこのスペースは、さまざまなイベントや展示会に最適です。
また学会展示会や受付エリアなど、ゲストが集まる前室や交流の場としても広く活用されています。
広さとスケール感を活かしたイベントに適した空間で、多くの人が集まる場所としておすすめです。
天井のデザインやインテリアの重厚さが、威厳と格調の高さを漂わせ、アグレッシブな議論を重ねた後の一時的な休憩時間にふさわしい落ち着きを提供します。
基本情報
| 場所(エリア) | シーガイアコンベンションセンター |
|---|---|
| 場所(階数) | 2F |
| 面積 | – |
| ディナー形式 | – |
| 立食ビュッフェ形式 | – |
| 着席ビュッフェ形式 | – |
| シアター形式 | – |
| スクール形式 | – |
| その他の形式 | – |
| 備考 | – | 実績 | 学会展示会、受付 |
| 特徴 | 1414㎡というスケールに加え、柱のない大空間を実現した日本最大のロビー |
| 飲食 | 不可 |
バリアフリー情報
| 入り口ドアタイプ | – |
|---|---|
| 入り口ドア開口時の幅 | – |
| 入口ドア段差 | – |
ご相談内容に応じて、適切なテーブルレイアウトのご提案が可能です
イベントの形式・収容人数・ご予算などに合わせてスタッフが適切なテーブルレイアウトや設備のご提案をさせていただきます。

すべてのレイアウトプランを見る
設備紹介
設備・サービスが充実しています
バリアフリー対応で、すべてのお客様に快適な環境をお届けします。設備も充実しており、Wi-Fiや音響設備、プロジェクターなど、多様なニーズに対応しています。
※設備の有無はエリアごとに異なりますので、ご利用の際は事前にご確認ください。
無料でご利用いただける施設・設備サービス
-
無料Wi-Fi
-
車椅子貸出
-
AED
コンベンションセンター内充電器

有料の急速充電器を設置しております。
硬貨のみの対応でございます。
コピー機・PC

ビジネスラウンジにコピー機・PCを設置しております。詳しくはお問い合わせください。
コンベンションセンター入口総合案内

総合案内はデジタルサイネージで、館内のご案内と、当日のスケジュールを表示しております。
コンベンションセンターロビー

国際会議・学会・企業イベント・展示会などMICE開催時の受付・待合・ネットワーキングの場としてご利用可能です。広々とした空間は、来場者同士の交流やビジネスイベントの円滑な進行をサポートします。
カーリフト

最大6,000キロまで搭載可能なカーリフトをご用意しております。各フロアまで大型機材(展示用車含む)などの搬入が可能です。
駐車場

| 台数 | 平面駐車場 Aブロック~Fブロック 2000台 EブロックにEV充電器6基設置 |
|---|
平面駐車場から、ホテルロビーまでは、徒歩約3~5分程度を要します。
